Уютная, светлая однокомнатная квартира возле метро « Каменная горка».

229831BYN
76900USD
Номер договора: 219/4 от 2025-10-06
Обновлено: 13.10.2025
Параметры объекта:
Тип дома: панельный
Этаж/этажность: 4 / 16
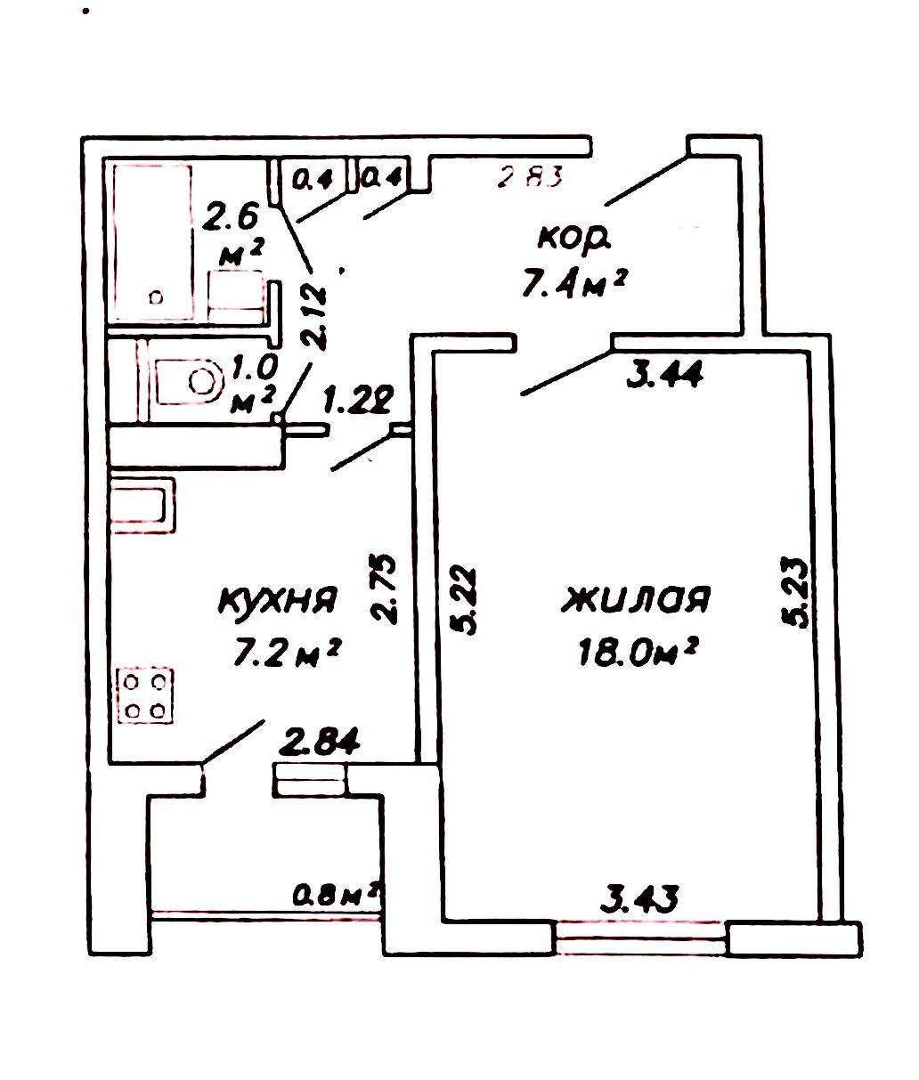
Площадь о/ж/к: 37 / 18 / 7.2 м²
Год постройки: 1991
Балкон: лоджия
Сан/узел: раздельный
Условия сделки: чистая продажа
Местоположение:
Город: г. Минск
Район города: Фрунзенский район
Дополнительно:

Продаётся уютная однокомнатная квартира в г. Минске по ул. Бурдейного, д.51. Один из самых востребованных микрорайонов- Запад 1.

Квартира расположена на 4 этаже 16 этажного одно подъездного дома. В доме есть два лифта (пассажирский и грузовой).

Квартира светлая, уютная, готова к проживанию.  Просторная жилая комната – 18 м, выход на лоджию из кухни, высокие потолки – 2,65м.Раздельный санузел.

Благоустроенный двор с достаточным количеством мест для парковки.

Квартира расположена в доме в микрорайоне с развитой инфраструктурой и хорошей транспортной доступностью, метро « Каменная горка» в шаговой доступности. Рядом находится всё для комфортной жизни и активного отдыха: ТРЦ Green City, Материк, Алми, кафе, салоны красоты и спортивные залы, гимназия, школа и детские сады.

Квартира полностью готова к проживанию и идеально подходит как для собственного проживания, так и для сдачи в аренду.

Никто не проживает. Ключи в день сделки.

Контакты:
Оставить заявку