Продажа двухкомнатной квартиры в лучшем районе города Минска!

253741BYN
84900USD
Номер договора: 204/4 от 2025-09-16
Обновлено: 10.10.2025
Параметры объекта:
Тип дома: панельный
Этаж/этажность: 3 / 5
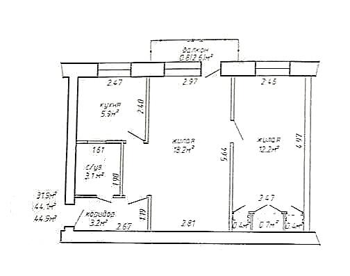
Площадь о/ж/к: 44.05 / 30.4 / 5.93 м²
Год постройки: 1964
Ремонт: хороший ремонт
Балкон: лоджия
Сан/узел: совмещенный
Условия сделки: чистая продажа
Местоположение:
Город: г. Минск
Район города: Московский район
Дополнительно:

По улице Р.Люксембург 173 продается уютная двухкомнатная квартира(с отдельной спальней) с ремонтом, частично с мебелью и техникой. Дом утопает в зелени деревьев.Отличный вариант для жизни!

Удобная планировка. Стеклопакеты с профилем из ПВХ. Шкаф-купе в спальне.

Высота потолков - 2,9м, что придает пространству легкость и простор. 3 этаж позволит вам насладиться великолепным видом на окружающую территорию.

 В совмещенном санузле, установлена ванна, стиральная машина, необходимая мебель для ванной комнаты.

 Подключены приборы учёта воды, оптоволоконная связь, домофон для Вашей безопасности. Входная двойная металлическая дверь.

 Уютный двор с красивым озеленением, достаточно парковочных мест.

Дом окружен зелёной зоной и местами для прогулок и отдыха. В нескольких метрах сквер Полянка и Маломедвежинский сквер, Лютеранский сквер. 

Отличное транспортное сообщение со всеми районами города. Близость к центру столицы. 

Один из самых престижных микрорайонов Минска.

Удобный выезд на МКАД. Хорошее наземное транспортное сообщение.

Развитая инфраструктура: в шаговой доступности остановки общественного транспорта, торговые и бизнес-центры, объекты бытового обслуживания и сервиса, магазины, учреждения здравоохранения и образования. Широкая транспортная сеть: многочисленные автобусы, маршрутные такси,метро.

Один из самых зеленых микрорайонов Минска.

ООО ДИНАС-недвижимость, УНП

192770120, лицензия N 02240/367 от 20.11.2018, договор 204/4 от 16.09.2025

Контакты:
Оставить заявку