3-хкомнатная квартира на Гришина (30 лет Победы)

265994BYN
89000USD
Номер договора: 42/5 от 2025-09-05
Обновлено: 08.09.2025
Параметры объекта:
Тип дома: кирпичный
Этаж/этажность: 10 / 10
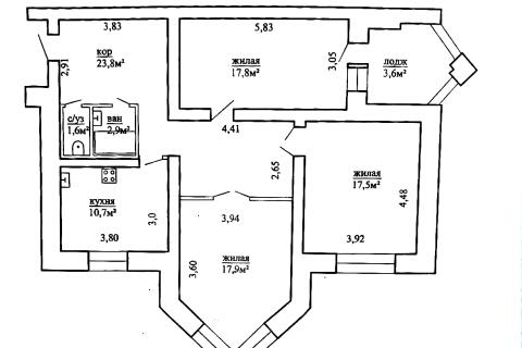
Площадь о/ж/к: 95.8 / 53.2 / 10.7 м²
Год постройки: 1998
Балкон: лоджия
Сан/узел: раздельный
Условия сделки: чистая продажа
Местоположение:
Район: Могилевский
Город: г. Могилев
Район города: Ленинский район
Дополнительно:

В продаже 3-хкомнатная квартира по улице Гришинав кирпичном доме на 10-ом этаже, есть технический этаж улучшенный проект, 95,8/53,2/10,7, комнаты все раздельные, коридор 23,8 кв.м., ламинированные полы, на кухне линолиум, санузел раздельный, ,квартира в жилом состоянии, остается кухня.

Поможем продать вашу недвижимость для покупки данного объекта. Работаем с привлечением кредитных денежных средств и Жилищным балансом.

ООО ДИНАС-недвижимость, лицензия № 02240/367 от 20.11.2018 г., договор № 42/5 от 05.09.2025

Контакты:
Оставить заявку