Просторная 3к квартира на Грибоедова в элитном ЖК «Залаты маентак»

1043056BYN
349000USD
Номер договора: 184/ от 2025-08-05
Обновлено: 16.08.2025
Параметры объекта:
Тип дома: монолитный
Этаж/этажность: 7 / 9
Площадь о/ж/к: 115 / 79.5 / - м²
Год постройки: 2014
Ремонт: хороший ремонт
Балкон: лоджия
Сан/узел: 2 сан.узла
Условия сделки: чистая продажа
Местоположение:
Город: г. Минск
Район города: Центральный район
Дополнительно:

Продается трехкомнатная квартира с мебелью и техникой в элитном жилом комплексе «Залаты Маёнтак» с домами клубного типа в живописном сквере имени Грибоедова. Респектабельные и статусные соседи.

Описание квартиры:

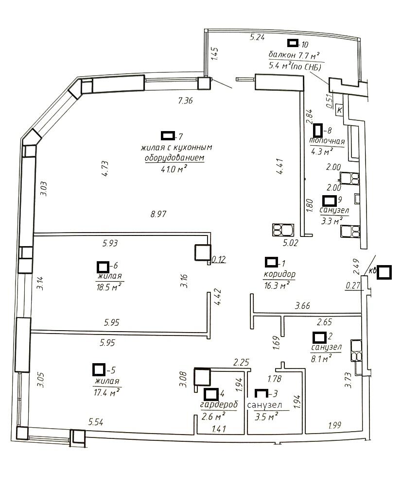
• просторная кухня-гостинная 41 м2

• 2 большие спальни 18,5 и 17,4 м2

• высокие потолки около 2,87 метров

• просторная гардеробная, 2 санузла

• индивидуальное отопление каждой квартиры

• постирочная

• просторная лоджия 7,7 м2, отличный вид

Квартал из семи домов имеет огороженную территорию со спортивной и детскими площадками, зоной отдыха. В самом комплексе есть салон красоты, СПА-комплекс, тренажерный зал и медицинский центр.

*В шаговой доступности сквер имени Грибоедова, Парк Победы, музей Великой Отечественной войны, Стела "Минск — город-герой", рядом ТЦ «Корона», ТЦ «Замок».

  Для семей с детьми недалеко гимназия, школа, детские сады.

В доме имеется подземный паркинг с прямым доступом из лифта, есть возможность приобрести машино-место на 1ом этаже паркинга рядом с лифтом.

Эта квартира будет отличным выбором для покупателя, ценящего статус и качество квартала, расположение, а также закрытую территорию в центре столицы. 

 

Приглашаем на просмотр, вам понравится эта квартира!

Торг при осмотре! 

 

 

 

Окажем содействие в получении выгодного кредита, а также поможем максимально выгодно продать вашу недвижимость для покупки этой.

Площадь указана по СНБ

Напишите нам в удобный для Вас мессенджер:

Viber | Telegram | WhatsApp

Ответим на Ваши вопросы, предоставим всю необходимую информацию.

Контакты:
Оставить заявку