Однокомнатная квартира ул.Менжинского,6

128514BYN
43000USD
Номер договора: 38/5 от 2025-08-05
Обновлено: 15.10.2025
Параметры объекта:
Тип дома: кирпичный
Этаж/этажность: 1 / 5
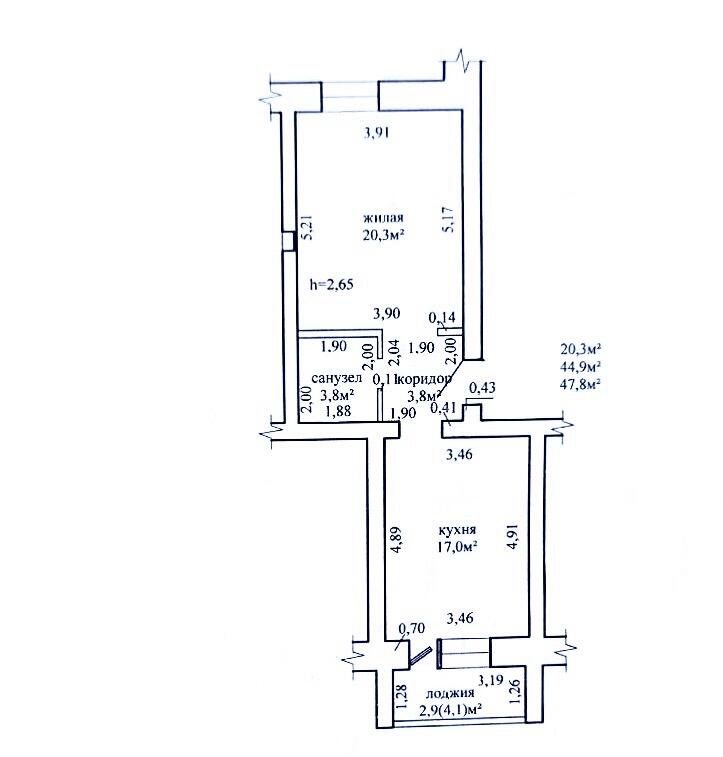
Площадь о/ж/к: 47.8 / 20.3 / 17 м²
Год постройки: 2022
Ремонт: без отделки
Балкон: лоджия
Сан/узел: совмещенный
Условия сделки: чистая продажа
Местоположение:
Район: Могилевский
Город: г. Могилев
Район города: Ленинский район
Дополнительно:

Представляем Вашему вниманию просторную и светлую однокомнатную квартиру, площадью по СНБ 47.8 м2, идеальное место для комфортной жизни одного или двух человек. Окна выходят на разные стороны дома.

Современный дом 2022 года постройки – забудьте о ремонте подъезда и текущих крышах! Вы станете счастливым обладателем «свежего» жилья с новыми коммуникациями.

Просторная жилая комната 20.3 м2 – хватит места для организации уютной спальни и гостиной зоны.

Огромная кухня 17.0 м2 – это не просто место для готовки, это полноценная столовая, где Вы сможете собираться всей семьей и друзьями за вкусным ужином! А выход на застекленную лоджию с кухни – это бонус для тех, кто любит проводить время на свежем воздухе, даже не выходя из дома.

Совмещенный санузел – функциональное решение, которое позволяет максимально использовать пространство.

Квартира со строительной отделкой – это Ваша возможность воплотить в жизнь любые дизайнерские идеи! Создайте интерьер своей мечты, не переделывая чужой ремонт.

Дополнительное пространство: наличие подвала – это отличное решение для хранения сезонных вещей, спортивного инвентаря или архивов.

Отличное расположение: всего 15 минут пешком – и Вы в самом сердце города! Насыщенная инфраструктура, деловая активность и множество мест для отдыха – всё под рукой.

 

Зеленые оазисы рядом: любите природу и свежий воздух? В непосредственной близости расположены живописные скверы и парки – идеальные места для прогулок, занятий спортом и семейного отдыха.

Дом обслуживается товариществом собственников. Квартира оборудована радиаторами отопления с возможностью регулировки тепла, а также установлены индивидуальные приборы учета тепла и воды. По периметру дома установлена система видеонаблюдения, есть своя парковка.

Возможна покупка с использованием банковского кредита или через Жилищный баланс.

Эта квартира – отличный вариант как для собственного проживания, так и для выгодной инвестиции! Звоните прямо сейчас, чтобы договориться о просмотре. Мы с радостью покажем Вам данный объект и сделаем Вас его счастливыми хозяевами! А также, поможем максимально выгодно продать Вашу недвижимость для покупки этой!

Договор 38/5 от 05.08.2025

ООО «ДИНАС-недвижимость», УНП 192770120, лицензия Министерства юстиции РБ 02240/367 от 10.01.2020.

Контакты:
Оставить заявку