Двухкомнатная квартира ул.Менжинского,6

185299BYN
62000USD
Номер договора: 39/5 от 2025-08-05
Обновлено: 15.10.2025
Параметры объекта:
Тип дома: кирпичный
Этаж/этажность: 5 / 5
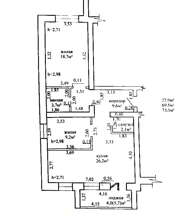
Площадь о/ж/к: 73.5 / 27.9 / 26.2 м²
Год постройки: 2022
Ремонт: без отделки
Балкон: лоджия
Сан/узел: раздельный
Условия сделки: чистая продажа
Местоположение:
Район: Могилевский
Город: г. Могилев
Район города: Ленинский район
Дополнительно:

Предлагаем Вашему вниманию светлую и уютную двухкомнатную квартиру площадью по СНБ 73,5 м2(евротрешка). Окна выходят на три стороны дома.

Почему именно эта квартира – Ваш идеальный выбор?

Простор и свет: площадь по СНБ 73.5 м2 – это настоящее воплощение комфорта. Жилая площадь 27.9 м2 позволяет создать уютные спальни или кабинеты, а грандиозный коридор 9.6 м2 не будет ограничивать Ваши движения.

Сердце квартиры: великолепная кухня-гостиная площадью 26.2 м2 – идеальное место для семейных ужинов, встреч с друзьями и уютных вечеров. Отсюда открывается выход на застекленную лоджию – Ваш персональный уголок для утреннего кофе или вечернего релакса.

Высокие потолки 2.98 м: ощутите свободу и воздушность в каждом уголке квартиры. Высокие потолки визуально расширяют пространство и создают атмосферу роскоши.

Есть возможность сделать два полноценных санузла, а это залог Вашего комфорта и экономия времени.

Кирпичный дом 2022 года: высочайшее качество строительства, отличная тепло- и звукоизоляция – Ваш дом будет надежным и комфортным на долгие годы.

Отличное расположение: всего 15 минут пешком – и Вы в самом сердце города! Насыщенная инфраструктура, деловая активность и множество мест для отдыха – всё под рукой.

Зеленые оазисы рядом: любите природу и свежий воздух? В непосредственной близости расположены живописные скверы и парки – идеальные места для прогулок, занятий спортом и семейного отдыха.

Наслаждайтесь жизнью на 5-м этаже 5-этажного дома, откуда открывается панорамный вид и царит атмосфера умиротворения. Из окна спальни открывается вид на Городскую Ратушу и православный храм.

Простор для творчества: квартира предлагается в состоянии строительной отделки, что позволяет Вам воплотить в жизнь любые дизайнерские идеи и создать интерьер Вашей мечты с нуля!

Дополнительное пространство: наличие подвала – это отличное решение для хранения сезонных вещей, спортивного инвентаря или архивов.

Напоминаем, что дом не оборудован лифтом, что лучше подходит для активных семей, заботящихся о своем здоровье. Дом обслуживается товариществом собственников. Квартира оборудована радиаторами отопления с возможностью регулировки тепла, а также установлены индивидуальные приборы учета тепла и воды. По периметру дома установлена система видеонаблюдения, есть своя парковка.

Возможна покупка с использованием банковского кредита или через Жилищный баланс.

Приобрести эту квартиру — значит инвестировать в свое будущее и будущее своей семьи. Звоните прямо сейчас, чтобы договориться о просмотре. Мы с радостью покажем Вам данный объект и сделаем Вас его счастливыми хозяевами! А также, поможем максимально выгодно продать Вашу недвижимость для покупки этой!

Договор 39/5 от 05.08.2025

ООО «ДИНАС-недвижимость», УНП 192770120, лицензия Министерства юстиции РБ 02240/367 от 10.01.2020.

Контакты:
Оставить заявку