Продаётся 1/2 доли в квартире по ул. Авроровская, 6

113571BYN
38000USD
Номер договора: 172/4 от 2025-07-17
Обновлено: 13.10.2025
Параметры объекта:
Тип дома: панельный
Этаж/этажность: 2 / 9
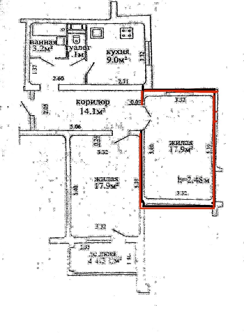
Площадь о/ж/к: 63.2 / 17.9 / 9 м²
Год постройки: 2009
Балкон: нет
Сан/узел: раздельный
Условия сделки: чистая продажа
Местоположение:
Город: г. Минск
Район города: Ленинский район
Дополнительно:

Хорошая квартира с нормальным ремонтом, частично укомплектована бытовой техникой и мебелью. Квартира полностью готова к проживанию.Доля выделена. Согласия на сделку получены.

Рядом находятся 3 детских сада, 3 школы, тихий двор, отличные соседи, очень развитая инфраструктура, рынок, нет проблем с парковкой.

Контакты:
Оставить заявку