Продажа двухкомнатной квартиры!

358644BYN
120000USD
Номер договора: 122/4 от 2025-05-13
Обновлено: 23.09.2025
Параметры объекта:
Тип дома: панельный
Этаж/этажность: 1 / 19
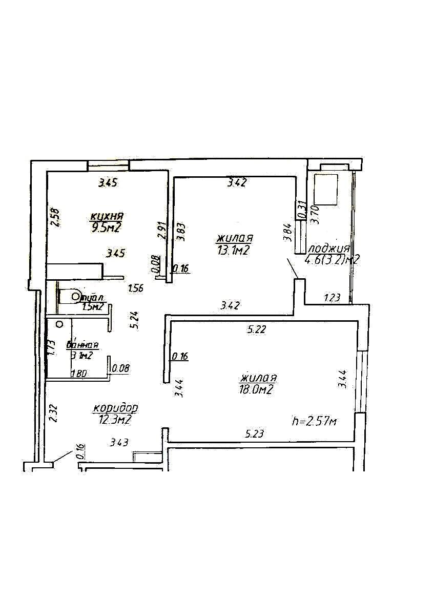
Площадь о/ж/к: 57.5 / 31.1 / 9.5 м²
Год постройки: 2011
Ремонт: хороший ремонт
Балкон: лоджия
Сан/узел: раздельный
Условия сделки: чистая продажа
Местоположение:
Город: г. Минск
Район города: Заводской район
Дополнительно:

По переулку Томского 35 продаются 2-х комнатная квартире с ремонтом, частично  с мебелью и техникой. Дом повышенной комфортности. Лоджии делают квартиру очень светлой. Площадь по СНБ – 60,7м, жилая -31.1м2, кухня-9,5 м2. Высота потолков - 2,57 м,  что придает пространству легкость и простор. Высокий первый этаж позволит вам насладиться великолепным видом на окружающую территорию.

Встроенная кухня  укомплектована: варочной поверхностью Bosch, духовым шкафом,холодильником , стиральной машиной. Сан узел раздельный, оборудован современной сан.техникой, мебелью, люки скрытых инженерных систем. В коридоре установленсовременный шкаф-купе . Напольное покрытие в комнатах – ламинат с подогревом. Межкомнатные двери .

Уютный двор с красивым озеленением, достаточно парковочных мест. «Безбарьерная среда» для молодых родителей с коляской и людей с ограниченными возможностями. Установлены видеокамеры.

Один из самых зеленых микрорайонов Минска.

Удобный выезд на МКАД. Хорошее наземное транспортное сообщение.

Мы с радостью покажем вам квартиру и поможем стать её счастливыми хозяевами!

Не упустите свой шанс обрести стильный и комфортный дом!!!

Лучше один раз увидеть - Приходите, смотрите.

Мы рады Вам, Вы благодарны нам! 

ООО ДИНАС-недвижимость, УНП

192770120, лицензия N 02240/367, договор 122/4 от 13.05.2025

Контакты:
Оставить заявку