672458BYN
225000USD
Номер договора: 208/4 от 2025-09-19
Обновлено: 30.09.2025
Параметры объекта:
Вид объекта: коттедж
Материал крыши: ондулин
Вода: горячая
Отопление: отопление на газу
Электричество: есть
Газ: есть
Канализация: есть
Площадь о/ж/к: 230.5 / 121.4 / 14.4 м²
Площадь участка: 14 соток
Кол-во уровней: 2
Год постройки: 2018
Условия сделки: чистая продажа
Местоположение:
Район: Минский
Город: п. Городище
Направление: Московское
Расстояние от МКАД: 14 км.
Дополнительно:

Предлагается к продаже просторный уютный дом в поселке Городище, 

в 12 км от МКАД в Московском направлении.

Дом построен в 2018 г, материал стен - силикатные блоки. Общая площадь дома 230,5м2, жилая 121,4м2, площадь участка-0,14 га.

В доме два уровня - первый этаж и мансардный.

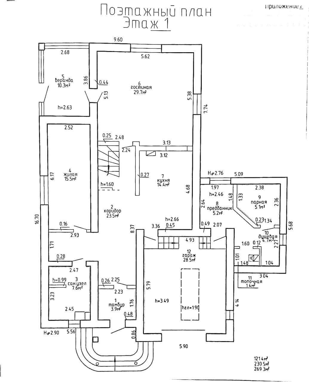
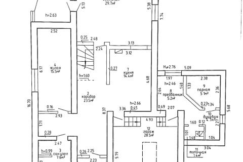
На первом этаже размещаются:

 Гостиная - 29,7 м2

 Жилая комната – 15,5 м2

 Кухня – 14,4 м2

 Веранда – 10,3 м2

 Сауна с комнатой отдыха, душевая

 Гараж – 28,5 м2, с ямой

 Санузел

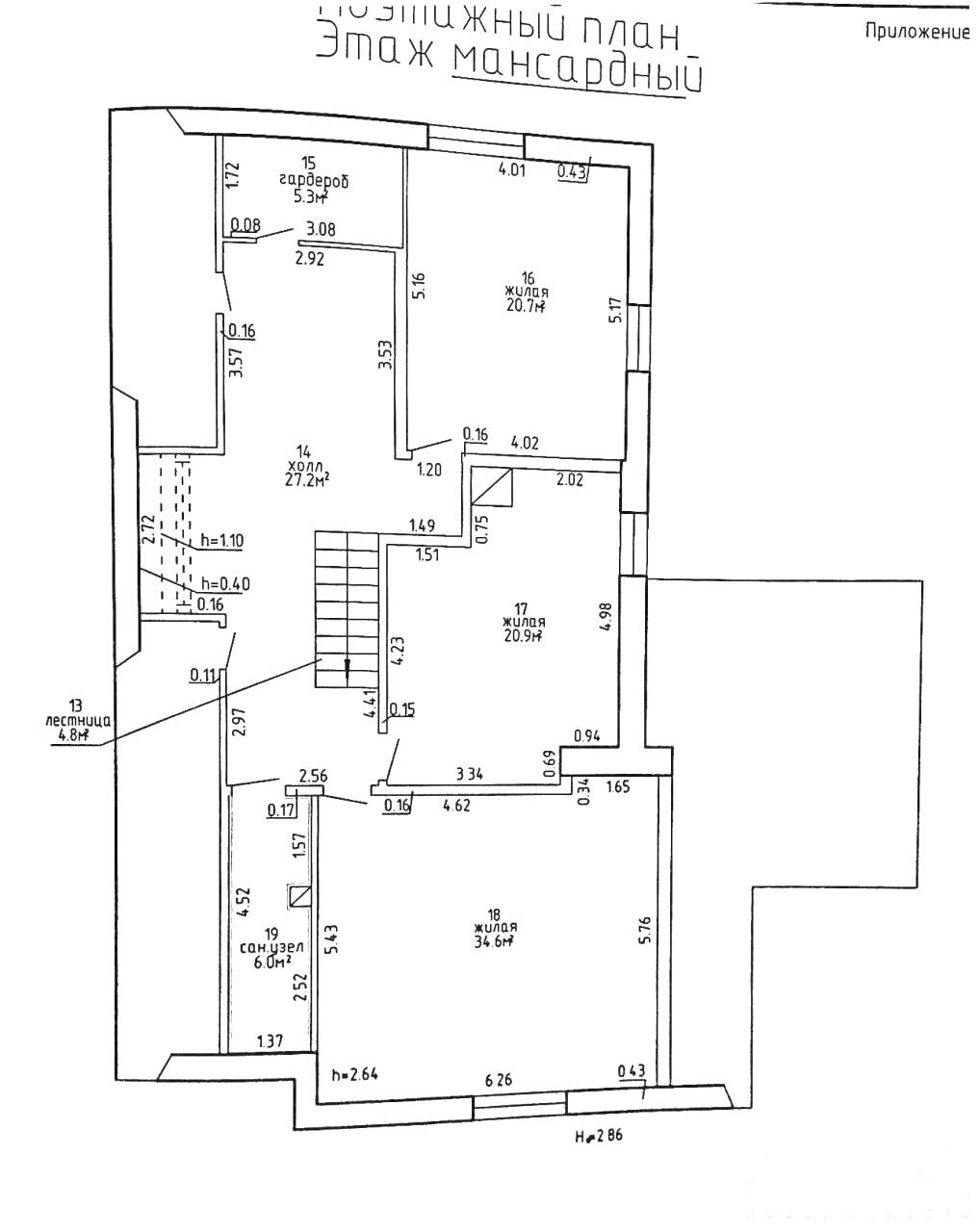
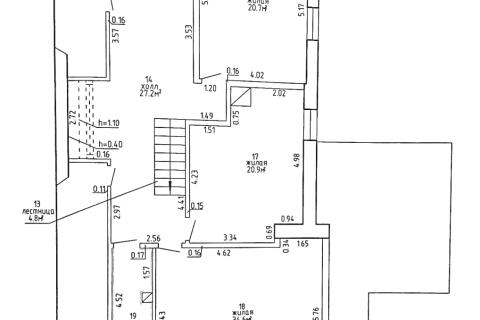
На втором этаже размещаются:

 Три большие комнаты – 20,7 м2, 20,9 м2, 34,6 м2

 Гардероб – 5,3 м2

 Холл – 27,2 м2

 Санузел

Высота потолков в доме - 2.7 метра.

В доме центральное водоснабжение. Дом отапливается газом (установлен газовый котёл). Тёплые полы на первом этаже.

Архитектурой дома предусмотрена возможность установки на первом этаже камина, для чего выведен отдельный канал для дымохода.

В непосредственной близости от дома сосновый лес и озеро. Дом полностью готов к проживанию. Очень тёплый. Отапливается газовым котлом.

Установлены радиаторы и тёплые полы на первом этаже. Все помещения большие квадратной формы. Потолки 2.7 метра. На первом этаже есть возможность установки камина, выведен отдельный канал для дымохода. Так же в доме есть вместительный гараж с ямой, сауна с душевой и комнатой отдыха, техническое помещение.

Участок 14 соток, форма собственности – частная (для строительства и обслуживания одноквартирного жилого дома). Участок зонирован и ухожен, с очень красивым ландшафтным дизайном. Есть декоративные и культурные насаждения, огород и теплицы, малые архитектурные формы, зона барбекю.

 Вдоль забора высажены туи, высота около 4 - 5 метров. На участке много красивых хвойных деревьев, декоративных кустов и цветов: тисы, кипарисовики, клёны, магнолии, рододендроны, азалии, редкие сорта многолетних цветов (розы, лилейники, лилии, пионы древовидные и др. ). Так же на участке есть плодовый сад: 4 груши, 4 яблони, сливы жёлтые, 2 вишни. Рядом с садом огород: кусты малины, крыжовника, смородины, жимолость, грецкий орех, фундук, голубика, клубника и земляника. На участке имеется хозблок с верандой.

В непосредственной близости от дома сосновый лес и озеро.

Есть возможность рассмотреть варианты обмена на квартиру в Минске с Вашей доплатой.

Звоните! Приезжайте!

Контакты:
Оставить заявку